Sauerland, vrijstaande bungalow, vakantie park
Website
Visit websiteDescription
Vrijstaande volledig geïnventariseerde bungalow, Europa-feriendorf omvat ongeveer 50 stenen bungalows, restaurant, wasserette, midgetgolf en speeltuinen. Er is een Nederlandse beheerder.
De bungalow mag permanent of recreatief gebruikt worden.
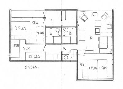
Indeling: 2 badkamers, loggia, hal, kamer, keuken en 3 slaapkamers.
De omgeving leent zich voor mooie wandelingen door het aangrenzend Nationale park het Südlich Teutoburgerwald.
In de nabije omgeving zijn burchten kerken en kloosters te bezoeken.
Deze woning heeft een huuropbrengst tot € 6000,- per jaar.
Vraagprijs € 69900,- .
De bungalow mag permanent of recreatief gebruikt worden.
Indeling: 2 badkamers, loggia, hal, kamer, keuken en 3 slaapkamers.
De omgeving leent zich voor mooie wandelingen door het aangrenzend Nationale park het Südlich Teutoburgerwald.
In de nabije omgeving zijn burchten kerken en kloosters te bezoeken.
Deze woning heeft een huuropbrengst tot € 6000,- per jaar.
Vraagprijs € 69900,- .
Contact
Similar ads
[ AdSense Block - Anunț Safe ]