Hongarije Nagykoros op HUURKOOP Tanya midden in de natuur
10,375.00 EUR
Website
Visit websiteDescription
Hongarije Nagykoros op HUURKOOP Tanya midden in de natuur
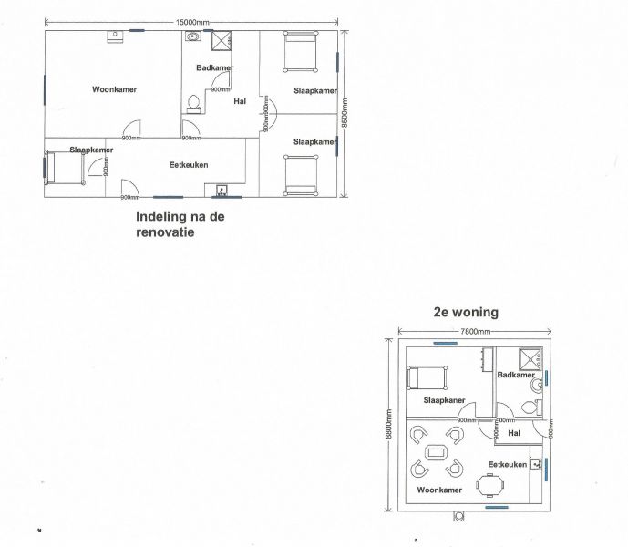
We starten binnenkort met de renovatie van de reeds gedeeltelijke gerenoveerde Tanya [woning]125m² plus 2e woning 56m² op het terrein gelegen in een natuur gebied op 4273m² eigengrond
Prachtige gelegen tussen bossen en weidse velden maar toch dicht bij een dorpje en grote stad
70 km van het vliegveld van Budapest
De woning is zeer geschikt voor permanente bewoning.
Stroom en water zijn aanwezig.
Verwarming: Houtkachel
Nederlandstalige huisarts praktiseert op ± 20 km van de woning
De woning wordt geheel gerenoveerd met kunststofkozijnen en HR isolatie beglazing opgeleverd, bij interesse is er nog inspraak mogelijk bij bijvoorbeeld de keuze van de vloertegels, keuken en de kleuren van de wanden
Het geheel staat op 4273m² eigengrond
Voorzieningen: Water uit eigen bron, 220V elektra
ID-LW 16
Huurkoop aanbetaling € 10.375,- incl. contract ko
We starten binnenkort met de renovatie van de reeds gedeeltelijke gerenoveerde Tanya [woning]125m² plus 2e woning 56m² op het terrein gelegen in een natuur gebied op 4273m² eigengrond
Prachtige gelegen tussen bossen en weidse velden maar toch dicht bij een dorpje en grote stad
70 km van het vliegveld van Budapest
De woning is zeer geschikt voor permanente bewoning.
Stroom en water zijn aanwezig.
Verwarming: Houtkachel
Nederlandstalige huisarts praktiseert op ± 20 km van de woning
De woning wordt geheel gerenoveerd met kunststofkozijnen en HR isolatie beglazing opgeleverd, bij interesse is er nog inspraak mogelijk bij bijvoorbeeld de keuze van de vloertegels, keuken en de kleuren van de wanden
Het geheel staat op 4273m² eigengrond
Voorzieningen: Water uit eigen bron, 220V elektra
ID-LW 16
Huurkoop aanbetaling € 10.375,- incl. contract ko
Contact
Similar ads
[ AdSense Block - Anunț Safe ]