Hongarije nabij Tiszakecske gerenoveerde boerenwoning
Website
Visit websiteDescription
Hongarije nabij Tiszakecske gerenoveerde boerenwoning
Voorbeeld:
Huurkoop aanbetaling € 10.000,- kosten voor hypotheekakte en overdacht = X aantal Euro en
maandelijkse betaling van € 200,- voor 70 maanden
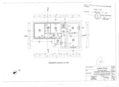
Gerenoveerde boerenwoning gelegen aan een goede doorgaande weg
De woning heeft een ruime woonkamer, grote slaapkamer, keuken, badkamer met toilet.
Centrale verwarming op gas in het gehele huis, nieuw aangelegd in 2009
De oude kozijnen zijn vervangen door eiken kozijnen voor zien van isolatie glas
Keuken is vervangen, de binnenmuren zijn opnieuw gestukadoord en geverfd
Er is een bouwvergunning aanwezig voor een uitbreiding met 2 slaapkamers en een luxe badkamer
( 2 slaapkamers 12m2 + 17.5m2 nieuwe badkamer 7m2 )
Het geheel staat op 1100m2 eigengrond
Gelegen op 75 km van vliegveld Budapest, en 25 km van 3 grote steden
Voorzieningen:
220V elektra
Propaan gastank
Combiketel bouwjaar 2009
Bronwater met hydrofoorinstallatie
Telefoon
Internet aansluiting
ID-Tisza 246
Hongarije Tiszakecske in de provincie Bacs-Kiskun is een plattelands provincie met uitgestrekte Puszta gebieden afgewisseld door grote bosgebieden
Het gebied waar de meeste woningen staan liggen rondom de steden Tiszakecske, Kecskemét en Cegléd.
B&B en/of campingplaats beschikbaar
Voorbeeld:
Huurkoop aanbetaling € 10.000,- kosten voor hypotheekakte en overdacht = X aantal Euro en
maandelijkse betaling van € 200,- voor 70 maanden
Gerenoveerde boerenwoning gelegen aan een goede doorgaande weg
De woning heeft een ruime woonkamer, grote slaapkamer, keuken, badkamer met toilet.
Centrale verwarming op gas in het gehele huis, nieuw aangelegd in 2009
De oude kozijnen zijn vervangen door eiken kozijnen voor zien van isolatie glas
Keuken is vervangen, de binnenmuren zijn opnieuw gestukadoord en geverfd
Er is een bouwvergunning aanwezig voor een uitbreiding met 2 slaapkamers en een luxe badkamer
( 2 slaapkamers 12m2 + 17.5m2 nieuwe badkamer 7m2 )
Het geheel staat op 1100m2 eigengrond
Gelegen op 75 km van vliegveld Budapest, en 25 km van 3 grote steden
Voorzieningen:
220V elektra
Propaan gastank
Combiketel bouwjaar 2009
Bronwater met hydrofoorinstallatie
Telefoon
Internet aansluiting
ID-Tisza 246
Hongarije Tiszakecske in de provincie Bacs-Kiskun is een plattelands provincie met uitgestrekte Puszta gebieden afgewisseld door grote bosgebieden
Het gebied waar de meeste woningen staan liggen rondom de steden Tiszakecske, Kecskemét en Cegléd.
B&B en/of campingplaats beschikbaar
Contact
Similar ads
[ AdSense Block - Anunț Safe ]